SOLO REFERENZIATI: SPAZIO DIREZIONALE DI ALTA QUALITA’ NEL CUORE DELLA CITTA’ Monfalcone

Codice annuncio 222875

900 €


Indirizzo

34074 Monfalcone (GO)


Superficie

120 Mq

Richiedi maggiori informazioni Richiedi una visita
Torna ai risultati
SOLO REFERENZIATI: SPAZIO DIREZIONALE DI ALTA QUALITA’ NEL CUORE DELLA CITTA’ Monfalcone

SOLO REFERENZIATI: SPAZIO DIREZIONALE DI ALTA QUALITA’ NEL CUORE DELLA CITTA’ Monfalcone

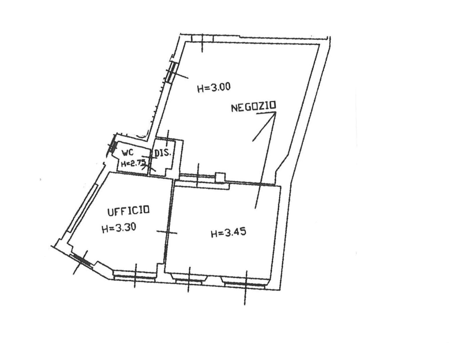
Situato nel pieno centro, nelle immediate adiacenze della rinnovata Piazza della Repubblica, proponiamo un esclusivo spazio commerciale, già adibito ad ufficio, di 120 mq, ideali per attività professionali o commerciali di alto livello. L’immobile si distingue per la sua luminosità, favorita dalle ampie vetrate fronte strada, e per il suo recente intervento di ristrutturazione, che garantisce finiture di pregio e pronta fruibilità. La disposizione interna comprende tre stanze, un antibagno e un bagno, distribuite su un unico livello, ottimamente rifinite. Il canone mensile è di 900 euro, a cui si aggiungono le spese condominiali e le utenze. Riscaldamento autonomo. Ideale come studio professionale, grazie alla posizione strategica e alle finiture di qualità !! Si richiede referenza previa incontro presso la nostra agenzia. Per ulteriori informazioni o per fissare un appuntamento, inviare mail a monfalcone@grupposirio.com. Rif. 22875

Locali


  • Superficie commerciale: 120 Mq
  • Riscaldamento: Pompa di calore
  • Locali: 3

Altri dettagli


  • Riscaldamento autonomo

Efficenza energetica


  • Classe energetica: d

Costi


  • Prezzo: 900 €