LOCALE COMMERCIALE OPEN SPACE, FINITURE DI PREGIO E SUPER VETRINATO, CON BAGNO E MAGAZZINO Monfalcone
Codice annuncio 180513
98.000 €
Indirizzo 34074 Monfalcone (GO) Superficie 98 Mq
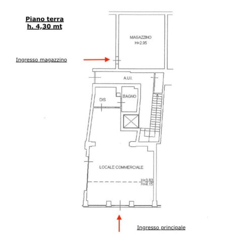
SuperficieCorso del Popolo, in una prestigiosa e storica palazzina completamente ristrutturata, locale commerciale con ampio open space di oltre 60 mq e altezza di 4,30 mt, valorizzato da finiture di pregio e mattoni storici riportati a nuova vita, creando un ambiente luminoso ed accogliente. Le grandi vetrate garantiscono un’elevata visibilità e un’ottima esposizione alla strada di forte passaggio. Di pertinenza dell’immobile un indispensabile magazzino di circa 30 mq con ingresso indipendente dalla corte condominiale retrostante la palazzina. Attualmente adibito a bar paninoteca, questo spazio si presta facilmente a molteplici attività, dalla ristorazione alla vendita al dettaglio, fino allo studio professionale. Già dotato di antibagno e servizio wc. Pronto per essere utilizzato, richiede solo le attrezzature per essere operativo. Un’opportunità unica per chi desidera avviare o espandere la propria attività in una posizione di grande visibilità e pregio. Rif. 180513
Caratteristiche
- Superficie commerciale: 98 Mq
- Riscaldamento: Metano
- Locali: 2
















