BICAMERE IN CENTRO COMODO AI SERVIZI E ALLA SPIAGGIA Grado
Codice annuncio 185399
Venduto
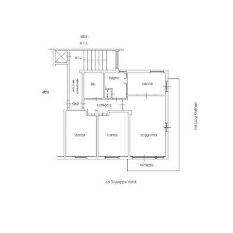
Indirizzo 34073 Grado (GO) Superficie 103 Mq
SuperficieIl gruppo SIRIO vi segnala che l’immobile di Via Luigi Galvani a Grado non è più disponibile.
Caratteristiche
- Superficie commerciale: 103 Mq
- Riscaldamento: Metano
- Camere: 2
- Bagno
- Cucina abitabile
- Terrazzo/i
Altri dettagli
- Climatizzazione e ventilazione autonoma
- Riscaldamento centralizzato
- Sollevamento (ascensori, montacarichi, ecc.)
Efficenza energetica
- Classe energetica: e


