Ottimo investimento: monocamera arredato con giardino e garage Latisana

Codice annuncio 196922

Venduto


Indirizzo

Via Martiri delle Foibe 2

33053 Latisana (UD)


Superficie

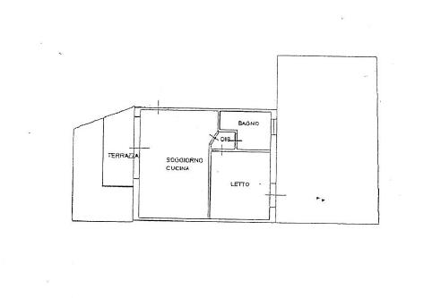
63 Mq

Richiedi maggiori informazioni
Torna ai risultati
Ottimo investimento: monocamera arredato con giardino e garage Latisana

Ottimo investimento: monocamera arredato con giardino e garage Latisana

Il gruppo SIRIO vi segnala che l’immobile di Via Martiri delle Foibe a Latisana non è più disponibile.

Caratteristiche


  • Superficie commerciale: 63 Mq
  • Giardino: Privato
  • Riscaldamento: Metano
  • Camere: 1
  • Angolo cottura
  • Bagno
  • Cantina/e
  • Garage
  • Giardino privato

Altri dettagli


  • Climatizzazione e ventilazione autonoma
  • Riscaldamento autonomo
  • Videocitofono

Efficenza energetica


  • Classe energetica: g