CASA DI TESTA CON AMPIO SCOPERTO A CLAUIANO Trivignano Udinese

Codice annuncio 213648

198.000 €


Indirizzo

33050 Trivignano Udinese (UD)


Superficie

298 Mq

Richiedi maggiori informazioni Richiedi una visita
Torna ai risultati
CASA DI TESTA CON AMPIO SCOPERTO A CLAUIANO Trivignano Udinese

CASA DI TESTA CON AMPIO SCOPERTO A CLAUIANO Trivignano Udinese

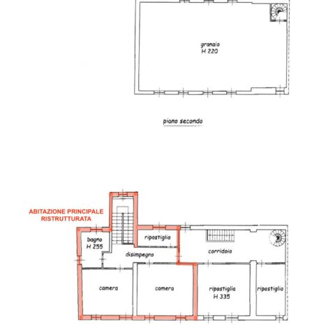
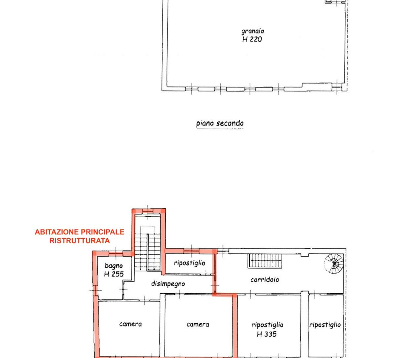
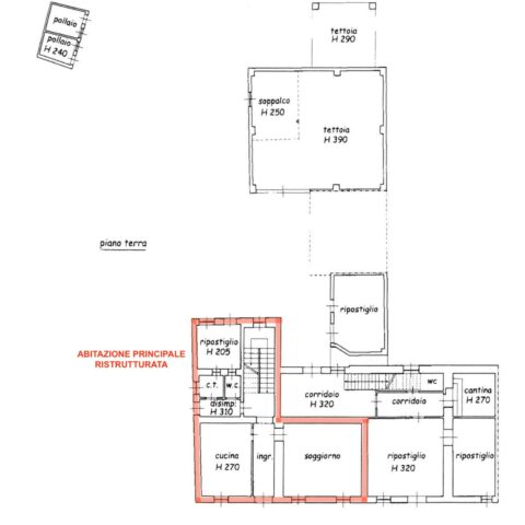
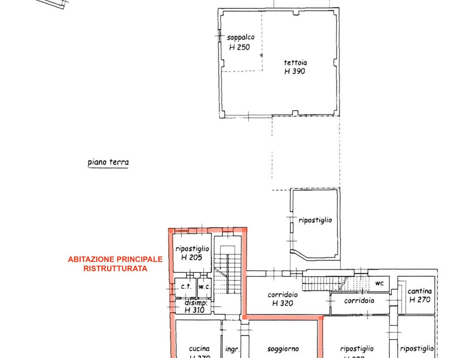
Situata in uno dei Borghi rurali più affascinanti del Friuli, questa casa in linea in posizione di testa offre molteplici potenzialità. La proprietà comprende una porzione completamente ristrutturata negli anni Ottanta, pronta da vivere fin da subito, con due ampie camere da letto, uno studio luminoso che stimola la creatività, un bagno e un servizio. La parte da ristrutturare apre le porte a infinite possibilità: creare un appartamento per genitori anziani, uno spazio ospiti, o il tuo angolo di lavoro, personalizzando ogni dettaglio su misura. Sul retro, la proprietà gode di un giardino di circa 1000 mq, un ex fienile con granaio e circa 9300 mq di terreno agricolo, offrendo un’opportunità unica di vivere in un contesto rurale autentico e versatile. Rif. 213648

Caratteristiche


  • Superficie commerciale: 298 Mq
  • Giardino: Privato
  • Riscaldamento: Metano
  • Camere: 2
  • Bagno
  • Cantina/e
  • Cucina abitabile
  • Garage doppio
  • Giardino privato

Planimetrie


Altri dettagli


  • Riscaldamento autonomo

Efficenza energetica


  • Classe energetica: g

Costi


  • Prezzo: 198.000 €