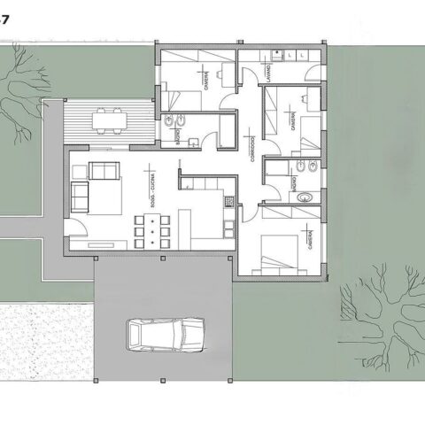
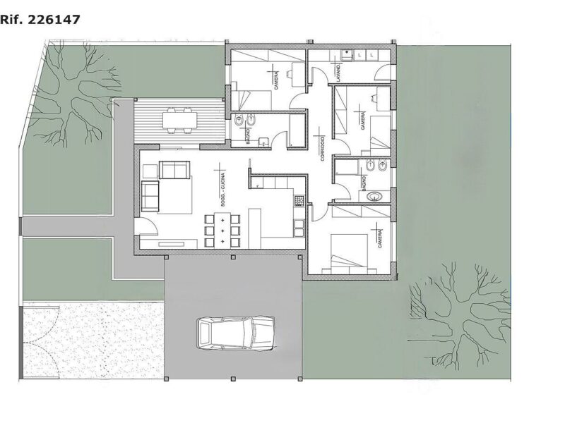
VILLA TRICAMERE SU UNICO LIVELLO – eleganza contemporanea in bioedilizia! Azzano Decimo
Codice annuncio 226147
360.000 €
Indirizzo 33082 Azzano Decimo (PN) Superficie 143 Mq
Superficie
A breve sorgerà una nuova casa indipendente in una posizione strategica, tra il centro di Azzano Decimo e quello di Chions. Un contesto tranquillo, perfetto per chi cerca la comodità senza rinunciare alla qualità della vita. La casa, costruita in bioedilizia, si svilupperà su un unico livello, con un bel giardino privato, posto auto coperto e un porticato esterno che invita a vivere l’estate all’aria aperta. All’interno troverai una zona giorno open space, due camere matrimoniali, una camera singola, doppi servizi e una pratica lavanderia. Le finiture saranno personalizzabili con eleganti travi in legno bianche a vista, materiali di prestigio e ambienti progettati per valorizzare la luce naturale. Sul fronte tecnologico, l’abitazione sarà dotata di impianto fotovoltaico da 6 kW, riscaldamento a pavimento e caldaia con pompa di calore, per garantire il massimo dell’efficienza energetica e un comfort sostenibile. È la casa ideale per una famiglia con bambini, pronta ad accogliere ogni momento importante della quotidianità. Disponibile entro un anno, ma pronta fin da subito a conquistarti. Rif. 226147
Caratteristiche
- Superficie commerciale: 143 Mq
- Giardino: Privato
- Riscaldamento: Metano
- Camere: 3
- 2 bagni
- Box/posto auto
- Cucina abitabile
- Giardino privato













