VIA DUCA D’AOSTA: SPAZIO COMMERCIALE VETRINATO CON DEPOSITO E WC ! Monfalcone
Codice annuncio 226788
59.000 €
Indirizzo 34074 Monfalcone (GO) Superficie 91 Mq
Superficie
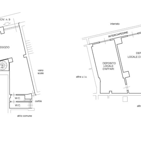
Monfalcone, Via Duca d’Aosta su strada di forte passaggio sia pedonale che stradale, ampio e versatile spazio commerciale ideale per diverse tipologie di attività, DA RIMODERNARE. L’immobile si sviluppa su un due livelli: il piano terra di oltre 50 mq, caratterizzati da due grandi vetrate che garantiscono un’ottima luminosità e visibilità, e completo di bagno/WC; il piano interrato, collegato internamente da una scala a chiocciola, un deposito di ulteriori 70 mq. Da personalizzare a seconda delle proprie esigenze lavorative. Riscaldamento condominiale con possibilità di distacco e renderlo autonomo. Impianti non certificati. Serramenti in alluminio mono lastra, con serrande avvolgibili in metallo. Rif. 226788
Caratteristiche
- Superficie commerciale: 91 Mq
- Riscaldamento: Metano
- Locali: 2
- Cantina/e



















