DUE CASE INDIPENDENTI CON GIARDINO Castions di Strada
Codice annuncio 227875
175.000 €
Indirizzo 33050 Castions di Strada (UD) Superficie 259 Mq
Superficie
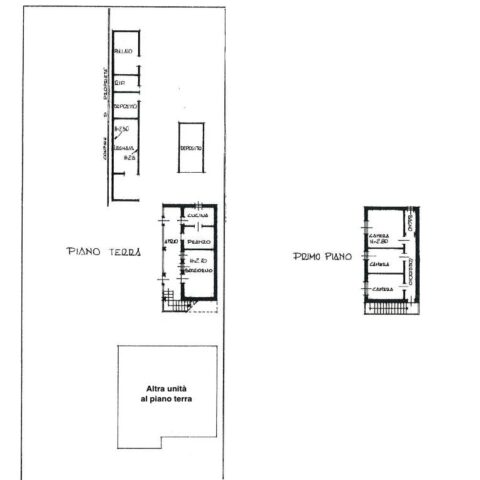
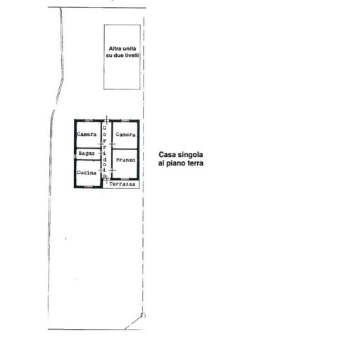
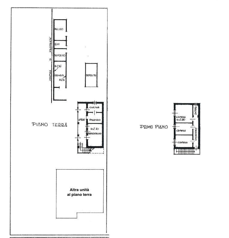
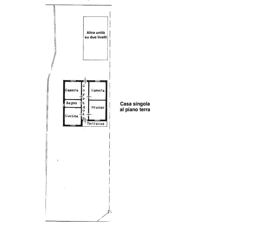
In posizione periferica a Castions di Strada, proponiamo un’originale soluzione immobiliare ideale per due nuclei familiari amanti del verde e della tranquillità. L’offerta comprende due abitazioni indipendenti: la prima, di 100 mq su un unico livello, perfetta per chi cerca comodità e assenza di barriere architettoniche; la seconda, situata sul retro, si sviluppa su due piani, con zona giorno al piano terra e tre camere al piano superiore. Entrambe le case sono circondate da un ampio giardino di 850 mq, arricchito da diversi depositi e una legnaia. Completa la proprietà un terreno agricolo di 1370 mq. Rif. 227875
Caratteristiche
- Superficie commerciale: 259 Mq
- Riscaldamento: Altro
- Camere: 5
- 2 bagni
- Cucina abitabile
- Terrazzo/i































