Casa indipendente tricamere con ampio giardino Rivignano Teor
Codice annuncio 228198
114.000 €
Indirizzo 33061 Rivignano Teor (UD) Superficie 347 Mq
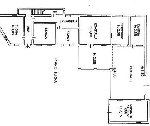
SuperficieLungo la strada che conduce a Rivignano, proponiamo interessante casa colonica indipendente, circondata da circa 800 mq di giardino recintato e dotata di vari ripostigli ad uso garage. L’abitazione, ben mantenuta, si sviluppa su tre livelli di circa 100 mq ciascuno, offrendo ambienti ampi, luminosi e con diverse possibilità di personalizzazione. Al piano terra troviamo una spaziosa zona giorno suddivisa in cucina, salotto, studio e bagno. Al primo piano si sviluppa la zona notte con tre camere da letto e un secondo bagno. La soffitta, caratterizzata da travi a vista in legno, rappresenta uno spazio versatile, ideale come ripostiglio oppure da valorizzare per ricavare ulteriore superficie abitabile. Una soluzione perfetta per chi cerca indipendenza, ampi spazi e tranquillità, senza rinunciare alla comodità dei collegamenti. Non perdere questa opportunità, prenota la tua visita Rif. 228198
Caratteristiche
- Superficie commerciale: 347 Mq
- Giardino: Privato
- Riscaldamento: Altro
- Camere: 3
- 2 bagni
- Cucina abitabile
- Garage
- Giardino privato
- Posto auto coperto
- Terrazzo/i





































