COMPLESSO IMMOBILIARE COMPOSTO DA LOCALE COMMERCIALE, SOVRASTANTE APPARTAMENTO E ANNESSO DEPOSITO. Sedegliano
Codice annuncio 228711
158.000 €
Indirizzo 33039 Sedegliano (UD) Superficie 310 Mq
SuperficieCOMPLESSO IMMOBILIARE COMPOSTO DA LOCALE COMMERCIALE, SOVRASTANTE APPARTAMENTO E ANNESSO DEPOSITO. Sedegliano 158.000 €















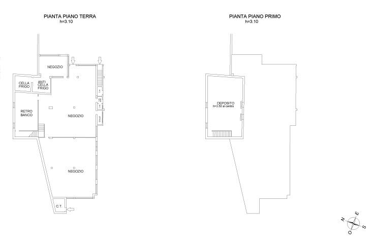
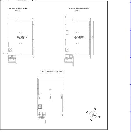
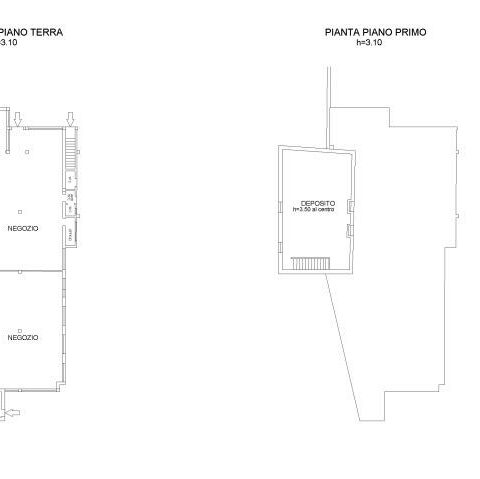
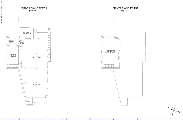
Opportunità immobiliare in posizione strategica: complesso composto da un locale commerciale di 400 mq al piano terra, in ottime condizioni, con pareti removibili e fronte vetrato ideale per personalizzazione. Al primo piano, un elegante appartamento di 155 mq rifinito con materiali pregiati, con due terrazze: una fronte strada e una sul giardino interno piantato e soleggiato. Completa il tutto un deposito di 120 mq su tre livelli, allo stato grezzo, e un terreno recintato di 1.200 mq, perfetto per parcheggi, attività all’aperto o ampliamenti. Situato in zona di grande interesse a metà strada tra i centri di Udine e Pordenone rappresenta un’opportunità unica per investitori e attività commerciali. Contattaci per info e visite! Rif. 228711.
Caratteristiche
- Superficie commerciale: 310 Mq
- Giardino: Privato
- Riscaldamento: Metano
- Camere: 3
- 2 bagni
- Box/posto auto
- Cantina/e
- Cucina abitabile
- Giardino privato
- Posto auto coperto
- Posto auto scoperto
- Terrazzo/i



























