CASA IN LINEA CON GIARDINO A NESPOLEDO Lestizza
Codice annuncio 228758
75.000 €
Indirizzo Lestizza (UD) Superficie 335 Mq
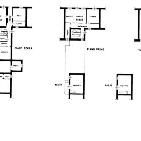
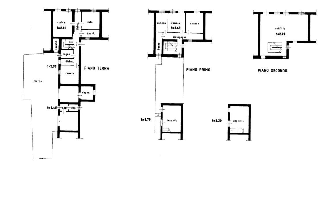
SuperficieNella frazione di Nespoledo proprio in centro paese, classica casa in linea di stampo friulano degli anni Sessanta, con cortile privato. L’abitazione è disposta su tre livelli di 85 mq ciascuno ed è stata oggetto di parziale ristrutturazione negli anni ’90, è un ottimo punto di partenza per essere personalizzata e ristrutturata; potrà infatti facilmente soddisfare tutte le esigenze di spazio della tua famiglia! Inoltre, sul retro, giardino privato di 380 mq perfetto per i tuoi momenti di relax, i giochi all’aperto dei tuoi figli e dei tuoi amici a quattro zampe, o il perfetto angolo per poterti finalmente dedicare al giardinaggio. Gli ampi spazi interni ed esterni la rendono ideale per famiglie numerose o per chi desidera vivere in campagna, godendo di tranquillità e privacy. Rif. 228758
Caratteristiche
- Superficie commerciale: 335 Mq
- Riscaldamento: Metano
- Camere: 3
- 2 bagni
- Cucina abitabile



















