CASA INDIPENDENTE TRICAMERE: la tua oasi di verde a due passi da Cordovado! Gruaro
Codice annuncio 230319
250.000 €
Indirizzo 30020 Gruaro (VE) Superficie 283 Mq
Superficie
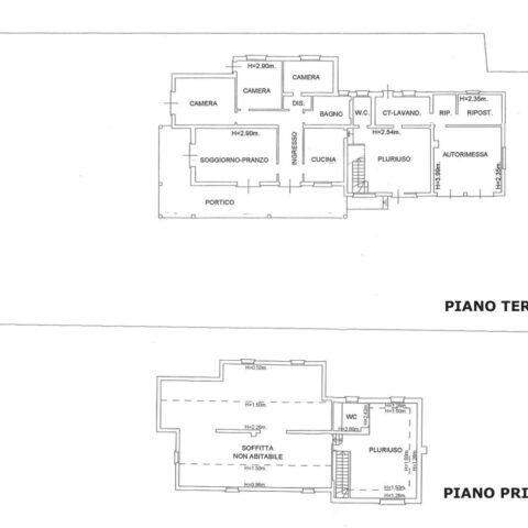
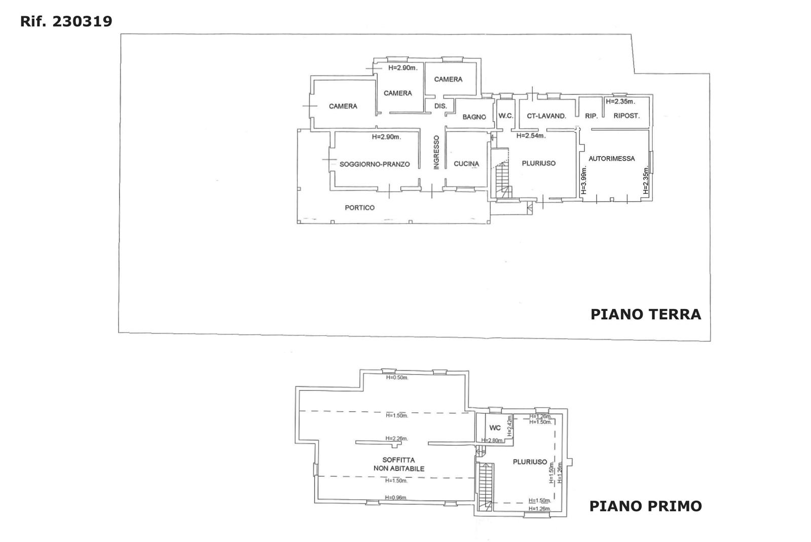
Bagnara di Gruaro, questa casa indipendente rappresenta una rara occasione per chi sogna un’abitazione tranquilla, riservata e circondata dalla natura. La proprietà si sviluppa su un ampio terreno di 1.130 metri quadrati, offrendo uno spazio generoso e un contesto sereno dove ritrovare il piacere della quiete quotidiana. Costruita nel 1973, la casa si presenta in ottime condizioni grazie a una manutenzione costante e a interventi di ammodernamento che ne hanno preservato il fascino e la funzionalità. Gli ambienti sono ampi e luminosi, pensati per accogliere con calore e comodità. Due porticati d’ingresso introducono a un soggiorno accogliente con caminetto, perfetto per le serate invernali, e a una cucina abitabile dove condividere momenti assieme ai tuoi cari. La zona notte comprende tre camere da letto e un bagno, tutti al piano terra. Sempre sullo stesso livello si trovano una spaziosa taverna, ideale per cene con amici o momenti di relax, una lavanderia, un ripostiglio, la centrale termica e un garage doppio. Salendo al piano mansardato si accede a uno studio riservato e a un secondo bagno, oltre a una soffitta al grezzo che offre ulteriori possibilità di personalizzazione, perfetta per chi desidera creare uno spazio su misura. La posizione è strategica: pur essendo immersa nella quiete della campagna, la casa è ben collegata ai principali servizi e alle vie di comunicazione, rendendola ideale per chi cerca un equilibrio tra tranquillità e praticità. È una casa dotata di efficiente impianto fotovoltaico da 6 kW, che accoglie, che protegge, che offre spazio e libertà. Rif. 230319
Caratteristiche
- Superficie commerciale: 283 Mq
- Riscaldamento: Metano
- Camere: 3
- 3 bagni
- Box/posto auto
- Cucina abitabile
- Garage
- Garage doppio























































