AMPIA VILLA INDIPENDENTE CON SCOPERTO PIANTUMATO E RECINTATO Gemona del Friuli
Codice annuncio 230483
Trattativa riservata
Indirizzo 33013 Gemona del Friuli (UD) Superficie 705 Mq
Superficie
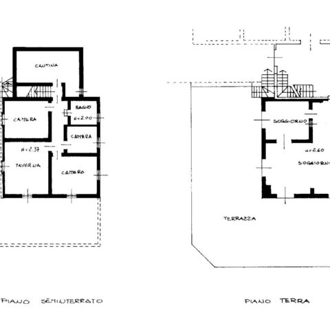
Alle porte di Gemona del Friuli, introvabile ampia villa indipendente con oltre 6.800 mq di giardino piantumato e recintato. Immobile dal tanto potenziale, adatto sia come abitazione unifamiliare che come abitazione plurifamiliare o anche da poter trasformare in struttura ricettiva. Rif. 230483
Caratteristiche
- Superficie commerciale: 705 Mq
- Giardino: Privato
- Riscaldamento: Gasolio
- Camere: 6
- 4 bagni o più
- Cucina abitabile
- Garage doppio
- Giardino privato
- Posto auto coperto
- Posto auto scoperto
- Terrazzo/i





























































































