CENTRALISSIMA VILLA SINGOLA CLASSE ENERGETICA A3, SU UNICO LIVELLO con GIARDINO Ronchi dei Legionari
Villa a Schiera
€ 259.000
Spaziosa casa in bifamiliare con giardino Palazzolo dello Stella
Codice annuncio 230800
135.000 €
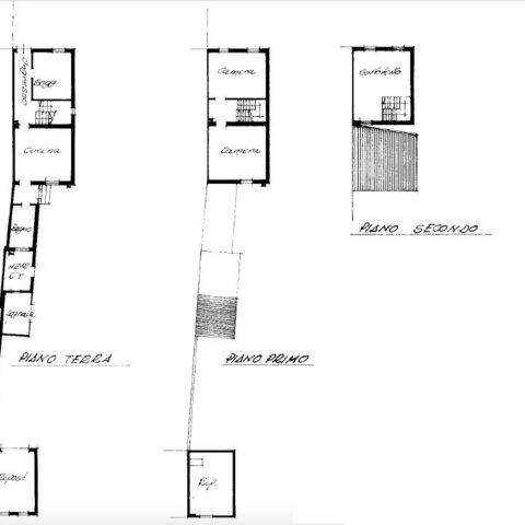
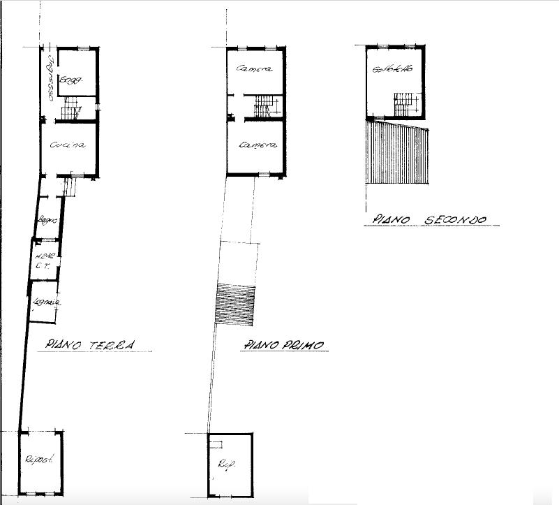
Indirizzo 33056 Palazzolo dello Stella (UD) Superficie 174 Mq
SuperficieIn posizione strategica, comodamente collegata a Latisana, al mare e al casello autostradale, proponiamo in vendita una piacevole abitazione in bifamiliare con giardino recintato di circa 900 mq, ideale per chi cerca privacy, comodità e spazi esterni ben sfruttabili. L’immobile, oggetto di costante manutenzione, si presenta in ottime condizioni ed è caratterizzato da ambienti moderni e ben rifiniti. Al piano terra troviamo una grande cucina abitabile, un soggiorno separato e un bagno. La zona notte, al piano superiore, offre due camere matrimoniali, mentre la spaziosa mansarda può essere utilizzata come terza camera, studio o area hobby. Completano la proprietà vari ripostigli esterni, utili come magazzino o ricovero attrezzi, e due posti auto coperti. Adatta sia come residenza principale, sia come casa vacanze. Contattaci per maggiori informazioni o per fissare una visita. Rif. 230800
Caratteristiche