CASA INDIPENDENTE TRICAMERE: comfort energetico e spazio per i tuoi hobby! Sesto al Reghena
Codice annuncio 230906
203.000 €
Indirizzo 33079 Sesto al Reghena (PN) Superficie 290 Mq
SuperficieCASA INDIPENDENTE TRICAMERE: comfort energetico e spazio per i tuoi hobby! Sesto al Reghena 203.000 €





















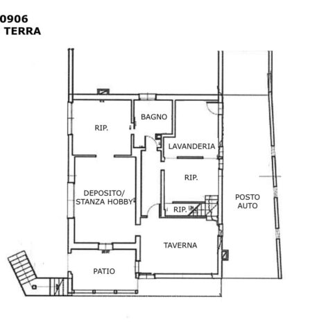
Nel cuore di Ramuscello di Sesto al Reghena, questa casa indipendente anni ’70 offre spazio, luce e comfort su un lotto generoso di 550 mq. Disposta su due livelli, si sviluppa principalmente al primo piano, dove una grande terrazza abitabile di 32 mq accoglie l’ingresso e collega il salotto con una bella panoramica vetrata e la cucina abitabile. La zona notte include tre camere e un pratico bagno. Al piano terra, collegato anche internamente, si trovano taverna, lavanderia, ripostiglio, due stanze hobby e un secondo ampio bagno. Un grande posto auto coperto completa la proprietà. Tra i suoi plus: metratura superiore alla media, ottima esposizione solare, aria condizionata e impianto fotovoltaico da 6 kW. Una soluzione perfetta per famiglie numerose e per chi cerca libertà, autonomia e spazio anche per coltivare le proprie passioni. Rif. 230906
Caratteristiche
- Superficie commerciale: 290 Mq
- Giardino: Privato
- Riscaldamento: Metano
- Camere: 3
- 2 bagni
- Box/posto auto
- Cucina abitabile
- Garage
- Giardino privato
- Posto auto scoperto
- Terrazzo/i








































