CENTRALE APPARTAMENTO TRICAMERE RINNOVATO Codroipo
Codice annuncio 231070
183.000 €
Indirizzo 33033 Codroipo (UD) Superficie 143 Mq
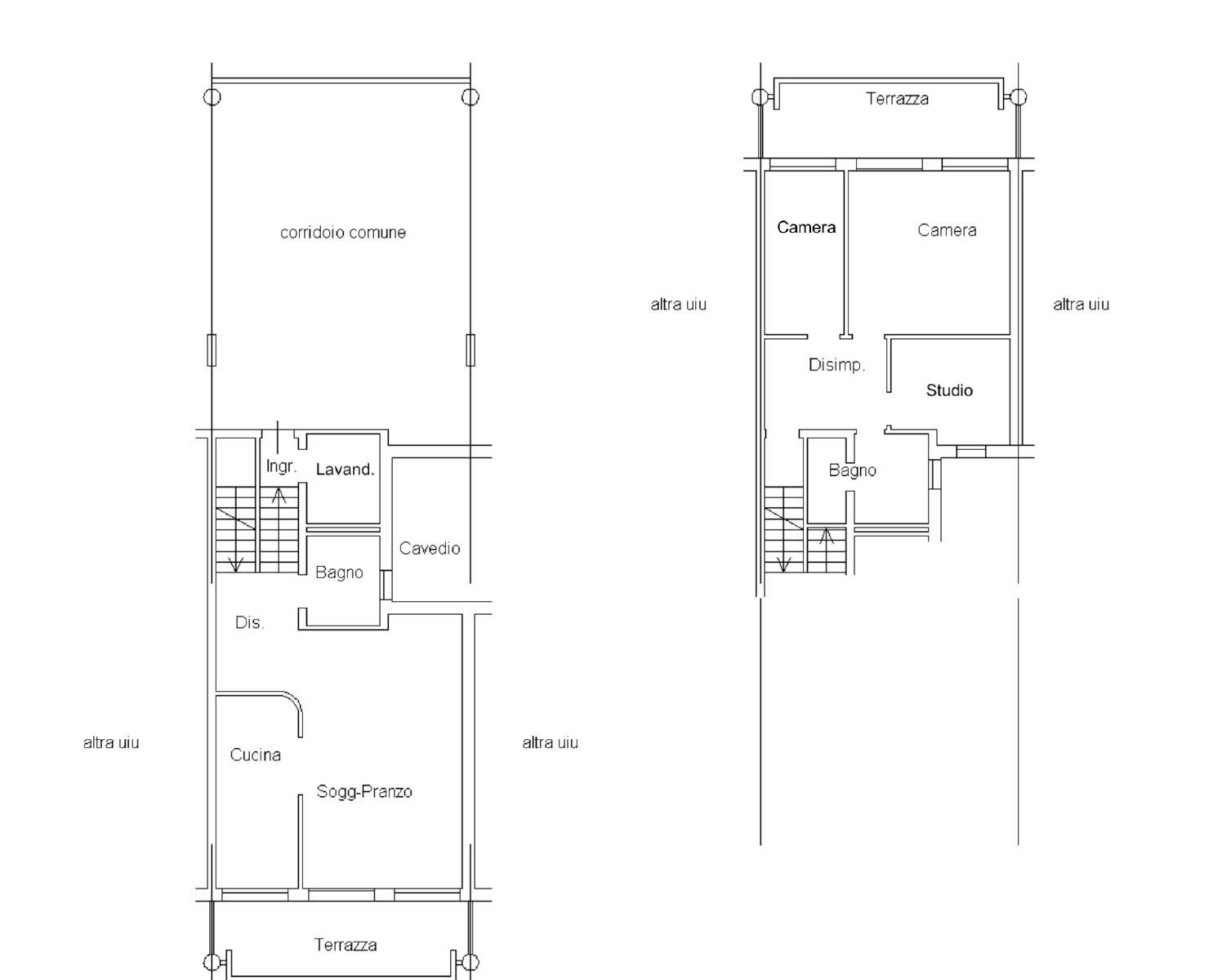
SuperficieInteressante appartamento dalle metrature superiori alla media, situato al secondo piano di un condominio in pieno centro a Codroipo. La palazzina è stata completamente ristrutturata due anni fa grazie al Superbonus 110%, con rifacimento di facciate dotate di cappotto da 14 cm, serramenti, impianti, terrazze e spazi comuni, mentre l’appartamento è stato interamente rivisitato internamente tre anni fa con il rifacimento di bagni, pavimenti, porte interne e l’aggiornamento dell’impianto elettrico.
La posizione è uno dei suoi punti di forza, a due passi dal centro e con tutti i principali servizi della comunità nel raggio di 100 metri, tra cui supermercato, scuole e piazza principale. L’ingresso al secondo piano conduce a un disimpegno con lavanderia/centrale termica; scendendo una rampa di scale si apre la zona giorno con bagno, ampio e luminoso soggiorno-pranzo, cucina separata da doppia porta scorrevole e grande terrazzo. Al livello inferiore si sviluppa la zona notte con tre camere, un ulteriore bagno e un secondo ampio terrazzo a servizio della camera padronale. Completano la proprietà garage e cantina. Non perdere questa interessante opportunità. Rif. 231070
Caratteristiche
- Superficie commerciale: 143 Mq
- Giardino: Comune
- Riscaldamento: Metano
- Camere: 3
- 2 bagni
- Cantina/e
- Cucina semi-abitabile
- Garage
- Giardino comune
- Terrazzo/i





































