CASOLARE FRIULANO CON AMPIO TERRENO Porpetto
Codice annuncio 232297
115.000 €
Indirizzo 33050 Porpetto (UD) Superficie 310 Mq
Superficie
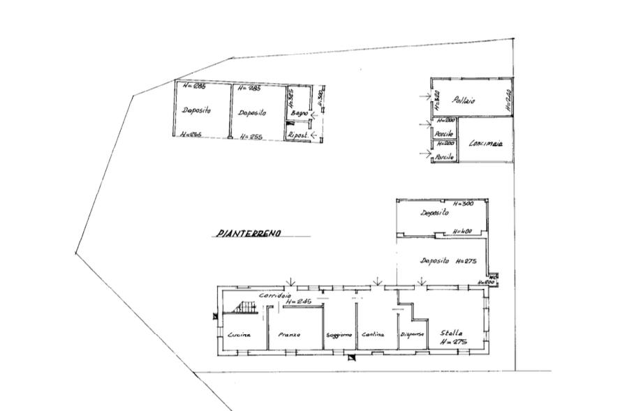
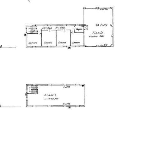
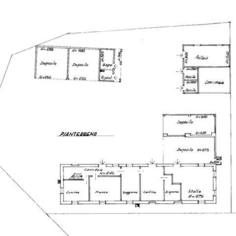
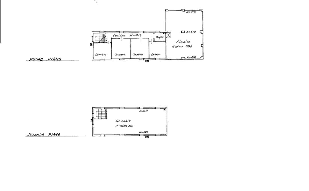
Casolare friulano situato nella tranquilla frazione di Castello, un autentico esempio di architettura rurale con un caratteristico ex fienile/granaio. L’immobile si sviluppa su due livelli, con circa 100 mq per piano: al piano terra si trova spaziosa e accogliente zona giorno, perfetta per momenti di convivialità, mentre al primo piano si sviluppano quattro camere da letto e un bagno, ideali per famiglie numerose o per creare spazi dedicati al benessere e alla privacy.
Completa la proprietà una serie di ripostigli esterni, utilizzabili come taverna, deposito o ricovero attrezzi, e un ampio terreno agricolo di circa 12.900 mq, ideale per attività agricole o per godere di spazi verdi e privacy totale. La posizione privilegiata immersa nel verde offre un contesto tranquillo, ideale per chi desidera investire nella ristrutturazione sfruttando gli incentivi statali e regionali disponibili. Rif. 232297
Caratteristiche
- Superficie commerciale: 310 Mq
- Giardino: Privato
- Riscaldamento: Metano
- Camere: 4
- Bagno
- Box/posto auto
- Cantina/e
- Cucina abitabile
- Giardino privato
- Posto auto coperto





































