CASA DI TESTA CON GIARDINO: indipendenza e tranquillità! Sequals
Codice annuncio 232319
119.000 €
Indirizzo 33090 Sequals (PN) Superficie 204 Mq
Superficie
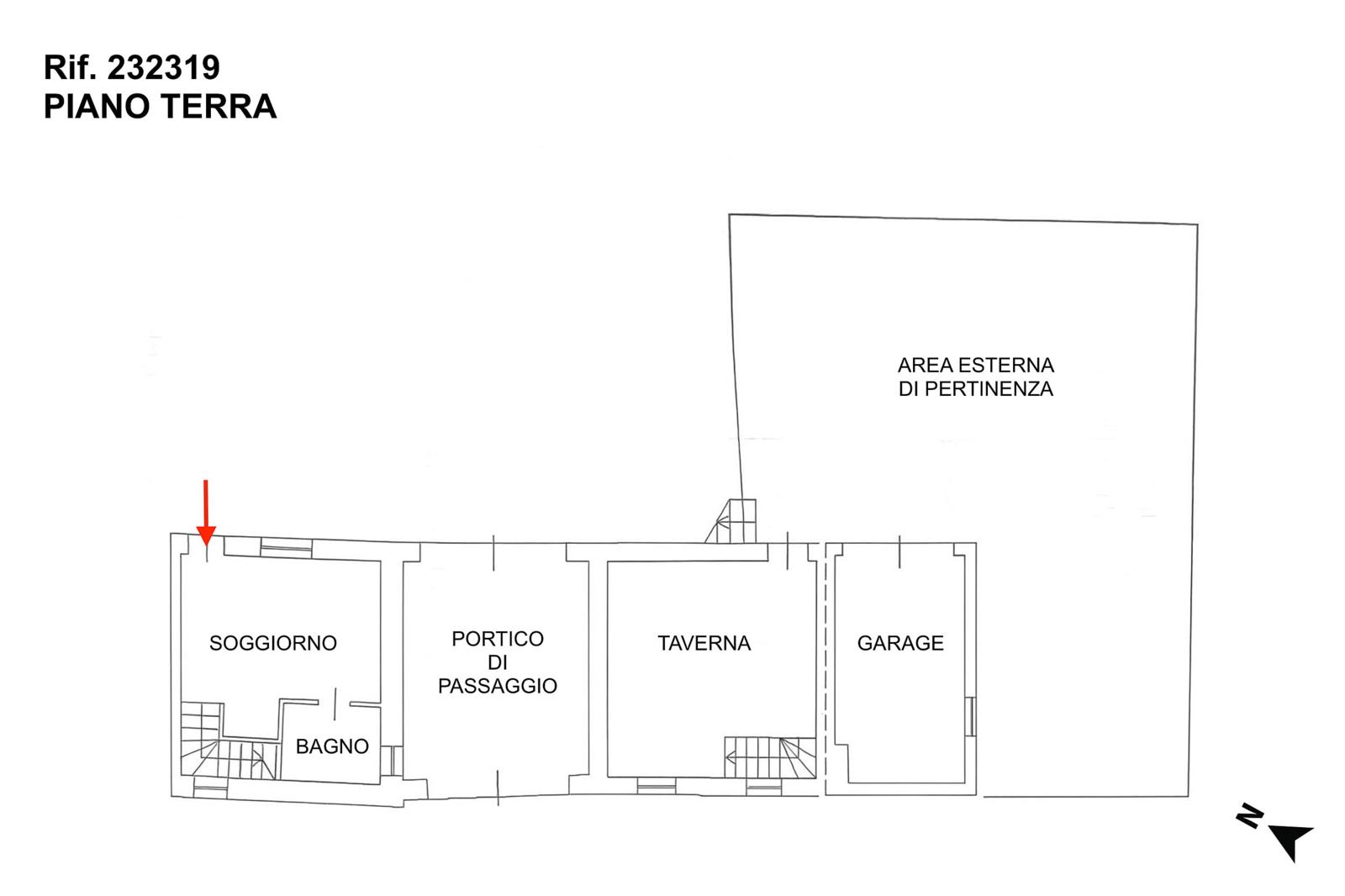
In una posizione tranquilla e riservata, proponiamo in vendita una casa di testa attualmente utilizzata come ufficio ma pronta a essere trasformata in residenziale. Una soluzione che unisce indipendenza e versatilità, ideale per accogliere una famiglia alla ricerca di spazi funzionali e di un contesto sereno. L’ingresso dal portico conduce alla corte comune e al giardino esclusivo che regala privacy e momenti di relax all’aperto. Al piano terra è presente una stanza perfetta come soggiorno, mentre al primo piano tre vani si prestano a diventare cucina e camere da letto. La soffitta e il piano seminterrato offrono ulteriore spazio da dedicare a deposito, svago o area relax, completando una distribuzione interna che si adatta facilmente a diverse esigenze. La proprietà si presenta in buono stato, pronta a trasformarsi in un’abitazione confortevole e indipendente, capace di coniugare funzionalità e atmosfera familiare ed è arricchita da un garage. Da non perdere! Rif. 232319
Caratteristiche
- Superficie commerciale: 204 Mq
- Giardino: Privato
- Riscaldamento: Gasolio
- Camere: 2
- 2 bagni
- Box/posto auto
- Cantina/e
- Cucina abitabile
- Garage
- Giardino privato
- Terrazzo/i











































