VILLETTA INDIPENDENTE E SUPER EFFICIENTE: un’occasione rara! Sesto al Reghena
Codice annuncio 232671
260.000 €
Indirizzo 33079 Sesto al Reghena (PN) Superficie 146 Mq
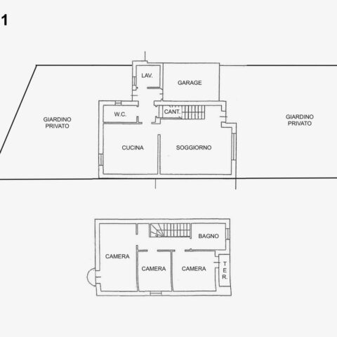
SuperficieIn una zona tranquilla e ricercata, a soli 4 km da San Vito al T., questa villetta a schiera del 2006 rappresenta una rara opportunità per chi desidera una casa moderna, efficiente e pronta da vivere. Indipendente su entrambi i lati grazie ai garage che la separano dalle altre unità, offre privacy, silenzio e una qualità abitativa difficile da trovare sul mercato. Il recente impianto fotovoltaico da 6 kW, la nuova caldaia e il sistema d’allarme aggiungono valore e sicurezza, garantendo consumi contenuti e comfort quotidiano. Gli ambienti interni si sviluppano su due livelli armoniosi. Al piano terra accoglie un soggiorno luminosissimo, una cucina abitabile di grande respiro, una lavanderia comoda e funzionale e un primo bagno con doccia. Al piano superiore si trovano tre camere da letto ben distribuite e un secondo bagno ampio e curato. A completare la praticità della casa, una soffitta ideale come ripostiglio aggiuntivo. All’esterno, invece, il giardino privato fronte-retro crea un’estensione naturale degli spazi interni con zona barbecue intima e riservata. Una soluzione luminosa, curata e pensata per chi cerca spazio, comfort e indipendenza. Perfetta per una famiglia con bambini e per chi desidera una casa che unisca funzionalità e calore. Rif. 232671
Caratteristiche
- Superficie commerciale: 146 Mq
- Giardino: Privato
- Riscaldamento: Metano
- Camere: 3
- 2 bagni
- Cucina abitabile
- Giardino privato
- Posto auto coperto
- Terrazzo/i




















































