Indipendenza, spazio e tranquillità: villa singola con terreno San Michele al Tagliamento
Codice annuncio 233142
136.000 €
Indirizzo 30028 San Michele al Tagliamento (VE) Superficie 271 Mq
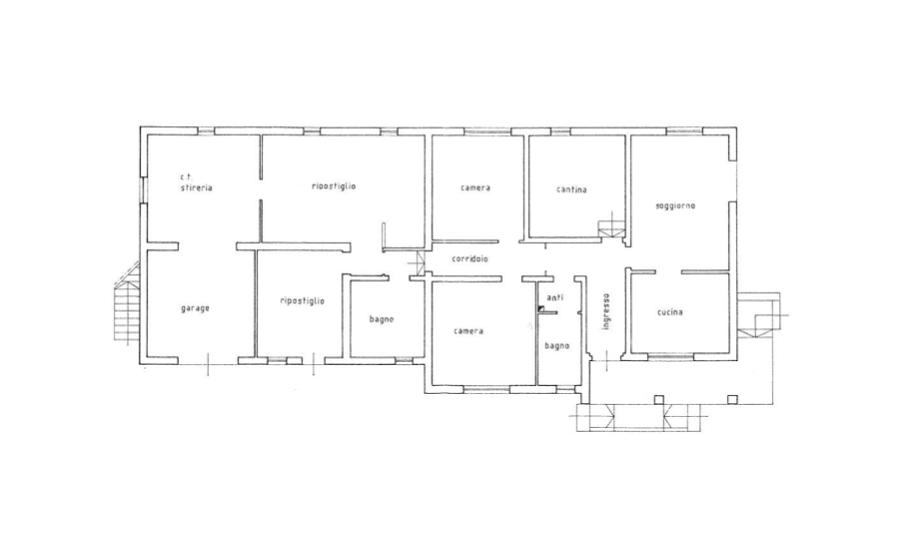
SuperficieNella quiete della frazione di San Giorgio al Tagliamento, casa indipendente che unisce ampi spazi, privacy e contatto con il verde: si sviluppa interamente su un unico piano per circa 200 mq ed è circondata da un terreno di 1.100 mq, perfetto per chi ama vivere all’aria aperta, creare un giardino su misura o dedicarsi a momenti di relax in totale tranquillità. Edificata negli anni ’70, conserva ambienti generosi e ben distribuiti, offrendo l’opportunità di essere rivisitata e personalizzata secondo il proprio gusto e le proprie esigenze, trasformandola in una dimora davvero unica. Gli interni accolgono una luminosa zona giorno, due camere da letto con la possibilità di ricavarne una terza, due bagni e un pratico ripostiglio, spazi pensati per una vita familiare comoda e funzionale. A completare la proprietà, un comodo garage e un prezioso locale lavanderia esterno, elementi che aggiungono praticità alla quotidianità. Grazie alla posizione strategica, immersa nel verde ma a breve distanza da Bibione, questa soluzione è perfetta non solo come residenza principale, ma anche come casa vacanze per chi desidera il mare a pochi minuti senza rinunciare alla pace e agli spazi di una casa indipendente. Una proposta ricca di potenziale! Rif. 233142
Caratteristiche
- Superficie commerciale: 271 Mq
- Giardino: Privato
- Riscaldamento: Metano
- Camere: 2
- 2 bagni
- Cantina/e
- Cucina abitabile
- Garage
- Giardino privato
- Posto auto scoperto































