Casa tricamere con giardino riservato e garage a due passi dal centro Ronchis

Codice annuncio 233800

138.000 €


Indirizzo

Via Pietro Leschiutta 11

33050 Ronchis (UD)


Superficie

173 Mq

Richiedi maggiori informazioni Richiedi una visita
Torna ai risultati
Casa tricamere con giardino riservato e garage a due passi dal centro Ronchis

Casa tricamere con giardino riservato e garage a due passi dal centro Ronchis

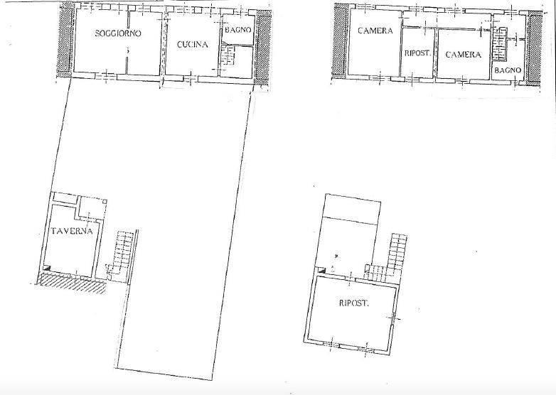
In contesto residenziale tranquillo, a pochi passi dal centro di Ronchis, proponiamo una casa accostata ai lati che si distingue per la buona metratura dei suoi interni, il giardino recintato e riservato sul retro e la dependance con garage, taverna e pratico ripostiglio. Al piano terra troviamo una luminosa zona giorno suddivisa tra cucina, soggiorno e sala da pranzo. Al primo piano si sviluppa la zona notte composta da tre comode camere dalle metrature introvabili e un bagno. Soluzione già pronta per essere abitata, che necessita solo di qualche intervento di rimodernamento per esprimere al meglio il suo potenziale; da personalizzare e rendere tua! Rif. 233800

Caratteristiche


  • Superficie commerciale: 173 Mq
  • Giardino: Privato
  • Camere: 3
  • 2 bagni
  • Balcone/i
  • Cucina abitabile
  • Garage
  • Giardino privato
  • Terrazzo/i

Planimetrie


Altri dettagli


  • Climatizzazione e ventilazione autonoma
  • Riscaldamento assente

Efficenza energetica


  • Classe energetica: g

Costi


  • Prezzo: 138.000 €