AMPIA CASA CON 4 CAMERE IMMERSA NEL VERDE – OTTIMA OCCASIONE Varmo
Codice annuncio 234220
37.000 €
Indirizzo 33030 Varmo (UD) Superficie 202 Mq
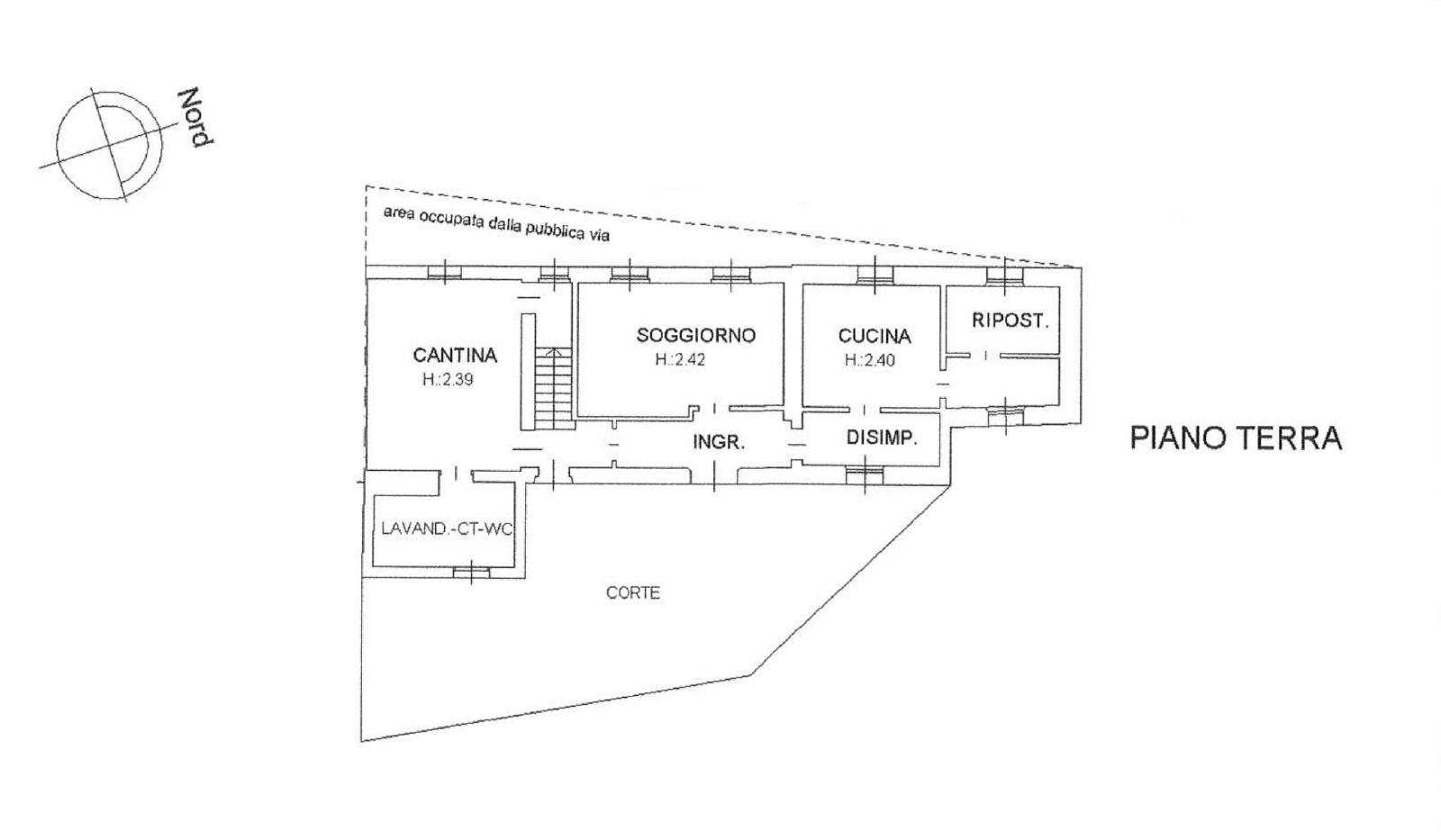
SuperficieIn frazione Belgrado casa accostata su un lato situata all’interno di una corte immersa in una zona tranquilla e verdeggiante, a pochi minuti dal centro di Varmo. Il fabbricato si presenta disposto su 3 piani con una distribuzione interna ampia e articolata: al piano terra si trovano l’ingresso, la cucina, il soggiorno, un pratico ripostiglio, la cantina, la lavanderia; al primo piano si sviluppa la zona notte composta da quattro camere da letto e un bagno; al secondo piano la soffitta, ampia e versatile, costituisce un vero plus dell’immobile, perfetta per essere trasformata in nuovi spazi abitativi o in un’area dedicata al tempo libero. Caratterizzato da un’ampia volumetria e da uno sviluppo su più livelli, offre una notevole flessibilità nella redistribuzione degli spazi interni, risultando ideale sia per una grande abitazione unifamiliare sia per la realizzazione di più unità abitative. Una soluzione particolarmente interessante anche in ottica di investimento, grazie alla possibilità di frazionamento e al prezzo d’occasione. Rif. 234220
Caratteristiche
- Superficie commerciale: 202 Mq
- Giardino: Comune
- Riscaldamento: Metano
- Camere: 4
- 2 bagni
- Giardino comune













