SAN LORENZO CASA INDIPENDENTE TRICAMERE DA VALORIZZARE – GIARDINO Sedegliano
Codice annuncio 234891
108.000 €
Indirizzo 33039 Sedegliano (UD) Superficie 259 Mq
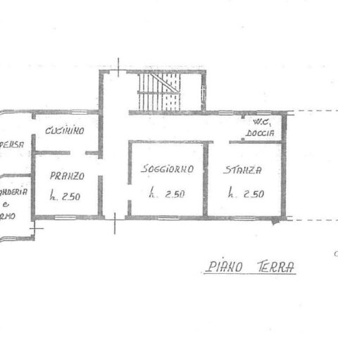
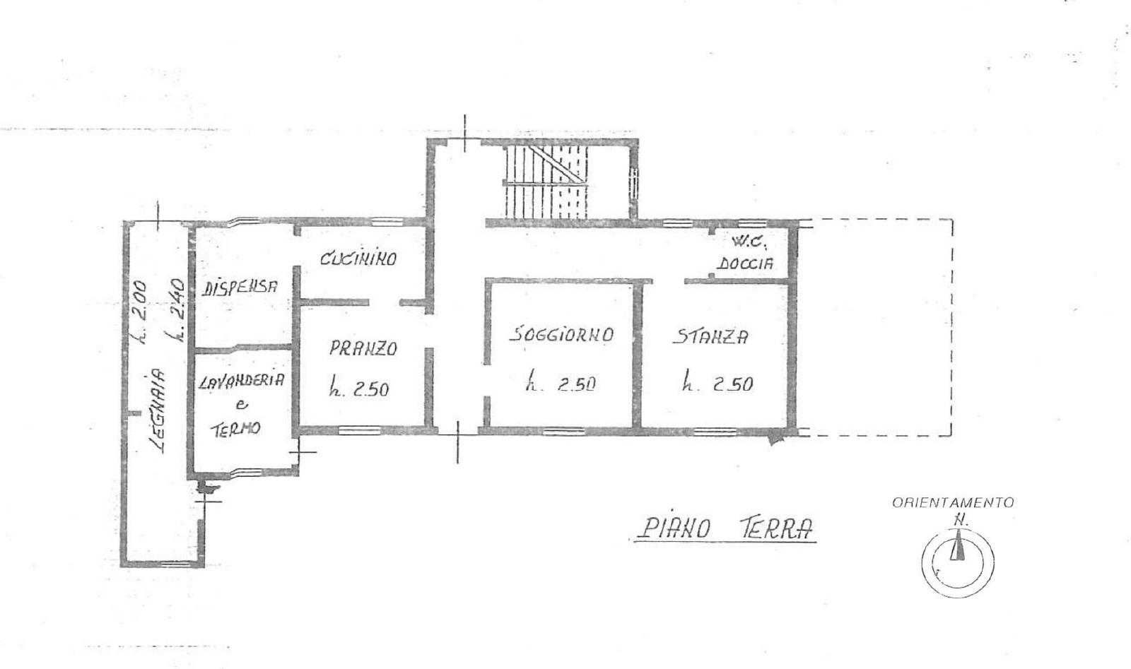
SuperficieSituata appena fuori dal centro di Sedegliano, raggiungibile in un minuto di auto, questa casa indipendente circondata da un bel giardino di circa 800 mq. unisce la tranquillità della campagna alla comodità dei servizi e si distingue per le generose metrature interne ed esterne, ideali per chi è alla ricerca di spazio, privacy e versatilità. Al piano terra l’abitazione ci accoglie con un soggiorno luminoso, una sala da pranzo separata, un cucinino funzionale e diversi ambienti di servizio tra cui bagno, dispensa, lavanderia e legnaia, oltre a un box prefabbricato accessibile esclusivamente dall’esterno. Il primo piano ospita la zona notte con tre spaziose camere matrimoniali, un bagno, un ulteriore servizio e una terrazza che regala un piacevole affaccio sull’esterno. Salendo ancora, la soffitta abitabile offre ulteriori possibilità di ampliamento o personalizzazione degli spazi. La casa gode di un’ottima illuminazione naturale durante tutta la giornata e di una splendida vista sulle montagne, elementi che contribuiscono a creare un’atmosfera accogliente e rilassante. Gli ampi spazi esterni e interni la rendono una soluzione ideale per famiglie con bambini in cerca di serenità e verde, perfetta per chi ama vivere a contatto con la natura offrendo la possibilità di essere valorizzata e personalizzata secondo i propri gusti. Rif. 234891
Caratteristiche
- Superficie commerciale: 259 Mq
- Giardino: Privato
- Riscaldamento: Gasolio
- Camere: 3
- 2 bagni
- Cantina/e
- Garage
- Giardino privato
- Terrazzo/i


































