Terreno edificabile – disponibili altre soluzioni in località limitrofe Mortegliano
Terreno residenziale
€ 54.000
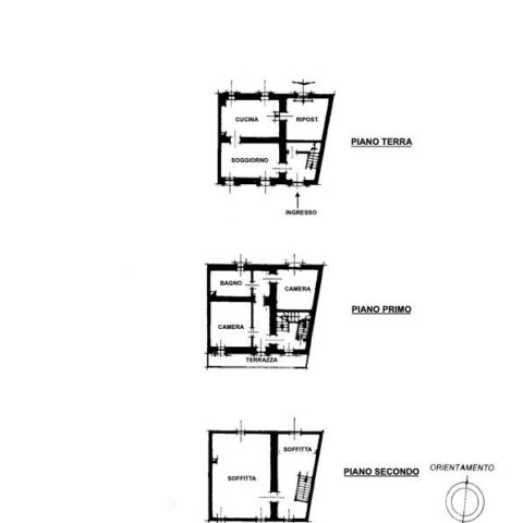
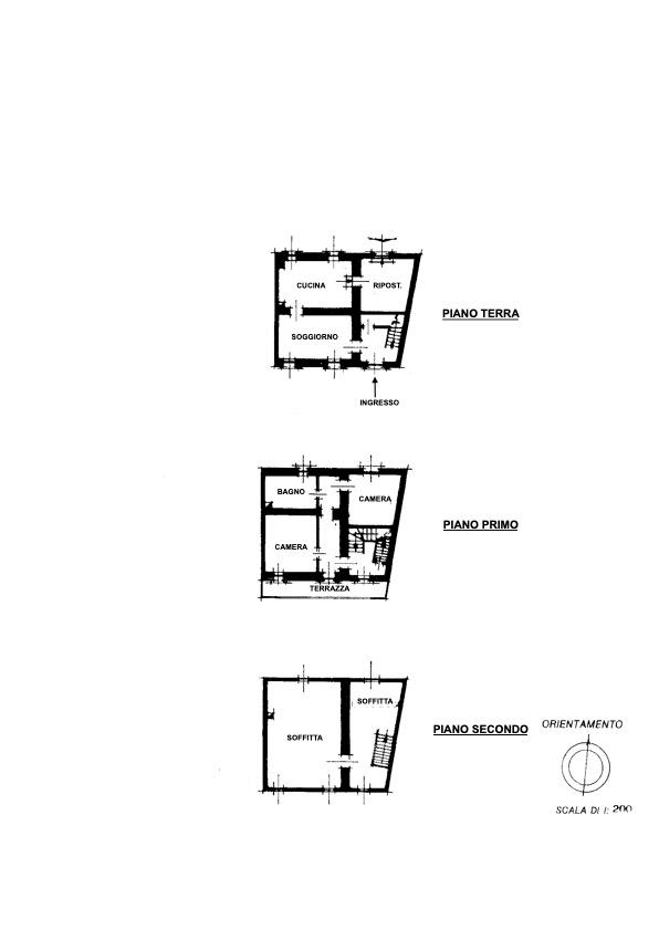
AMPIA CASA INDIPENDENTE BIFAMILIARE PLURICAMERE Ragogna
Codice annuncio 184243
140.000 €
Indirizzo 33030 Ragogna (UD) Superficie 306 Mq
SuperficieA soli 5 minuti dal lago, splendida casa indipendente pluricamere immersa nel proprio curato giardino. Composta da due unità abitative con ingresso indipendente, entrambe bicamere e biservizi, ideali per due nuclei familiari. Una delle unità è stata recentemente ed elegantemente ristrutturata. Ambienti ampi e luminosi, ottime finiture e una posizione riservata ma comoda a pochi passi da San Daniele: soluzione perfetta per chi cerca comfort e qualità di vita! Rif. 184243
Caratteristiche