MINIAPPARTAMENTO IN BIFAMILIARE Mossa
Codice annuncio 199728
55.000 €
Indirizzo 34070 Mossa (GO) Superficie 95 Mq
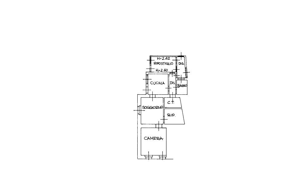
SuperficieNel Comune di Mossa, inserita in una casa bifamiliare senza spese condominiali, proponiamo un appartamento al piano terra e senza barriere architettoniche. L’appartamento, che vanta 95 mq, è composto da un salottino con cucina separata abitabile, una camera matrimoniale e due ripostigli da sfruttare come studio o comoda dispensa, oltre ad un bagno finestrato. Da rimodernare secondo i tuoi gusti, questo appartamento rappresenta la scelta ideale come prima casa, perfetta per chi desidera vivere su un unico livello, oppure come investimento redditizio. Rif. 199728
Caratteristiche
- Superficie commerciale: 95 Mq
- Riscaldamento: Gasolio
- Camere: 1
- Bagno
- Cucina abitabile




























