INTROVABILE VILLA CON GIARDINO IN ZONA RESIDENZIALE Grado
Codice annuncio 229460
680.000 €
Indirizzo 34073 Grado (GO) Superficie 453 Mq
Superficie
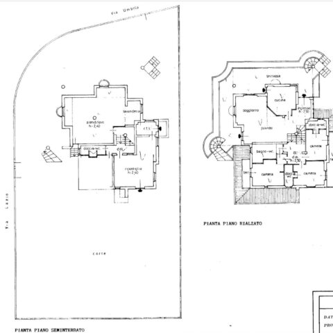
Nella zona residenziale di Valle Goppion, spaziosa villa con giardino piantumato e corte privata, dagli spazi generosi e particolari; si sviluppa su tre piani, e ciascuno è stato progettato per garantire funzionalità e benessere. Nel seminterrato si trovano gli ambienti accessori, tra cui uno spazio da dedicare alla taverna, un disimpegno/ripostiglio la lavanderia un bagno e la centrale termica. Il primo piano rialzato accoglie invece l’ingresso, che si apre sul soggiorno con un bellissimo e romantico caminetto e sulla cucina separata, che creano un ambiente spazioso e luminoso. Tramite pochi scalini si raggiungono poi le tre camere da letto, ciascuna dotata di bagno privato e tre terrazze che regalano spazi all’aperto. Una scala interna conduce al piano primo, caratterizzato da ambienti multifunzionali ideali per ospiti o come sala hobby, con un terrazzo che invita a momenti di relax all’aperto. Gli spazi interni sono confortevoli, ben organizzati e pratici, pronti per essere vissuti senza bisogno di lavori di ristrutturazione. La proprietà è arricchita da un ampio spazio verde, con zona orto e aree da dedicare a grigliate o momenti di convivialità con famiglia e amici, perfette per godersi un po’ di relax dopo una giornata al mare o al lavoro. Rif. 229460
Caratteristiche
- Superficie commerciale: 453 Mq
- Giardino: Privato
- Riscaldamento: Metano
- Camere: 3
- 4 bagni o più
- Box/posto auto
- Cantina/e
- Cucina abitabile
- Garage
- Giardino privato
- Posto auto scoperto
- Terrazzo/i
































































