CASA IN LINEA BICAMERE: soluzione versatile perfetta anche per investimento! Spilimbergo
Villa Bifamiliare
€ 58.000
Stabile centrale con ampie potenzialità abitative e commerciali Flaibano
Codice annuncio 232606
45.000 €
Indirizzo 33030 Flaibano (UD) Superficie 668 Mq
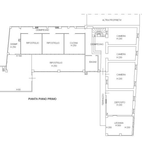
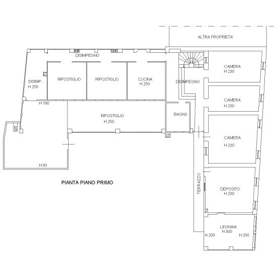
SuperficieIn zona centrale di Flaibano, vicino ai principali servizi del paese, proponiamo in vendita uno stabile disposto su tre livelli con area scoperta sul retro di circa 350 mq. La proprietà si presta perfettamente alla realizzazione di più unità abitative oppure di una struttura ricettiva, come un B&B. Attualmente il piano terra ospita un locale bar con sala da pranzo e bagno, caratterizzato da travi a vista, mentre al primo piano si trova un ampio appartamento con cinque camere e soffitta collegata. Un’ottima opportunità a prezzo vantaggioso, ideale come investimento o per avviare una nuova attività. Rif. 232606
Caratteristiche